Bouw- en woonrijp maken terrein flexwoningen
Alkmaar
Aan de Robonsbosweg in Alkmaar maakt K_Dekker het terrein bouw‑ en woonrijp ten behoeve van de realisatie van flexwoningen. In opdracht van de gemeente Alkmaar wordt hiermee een belangrijke bijdrage geleverd aan de tijdelijke woningopgave in de stad. Het project omvat zowel de technische voorbereiding van de bouwlocatie als de inrichting van de directe buitenruimte.




Bouw- en woonrijp maken terrein flexwoningen
Slim omgaan met bestaande structuren
Bijzonder aan dit project is dat de nieuw aan te brengen fundering grotendeels wordt gerealiseerd op de constructieve beganegrondvloer van een voormalig bouwwerk. Door deze bestaande constructie slim te benutten, wordt materiaalgebruik beperkt en blijft de impact op de ondergrond beheersbaar. Voor de fundering worden onder andere mortelschroefpalen en funderingsbalken toegepast, passend bij de gekozen bouwmethode van de flexwoningen.
Infrastructuur en terrein inrichting
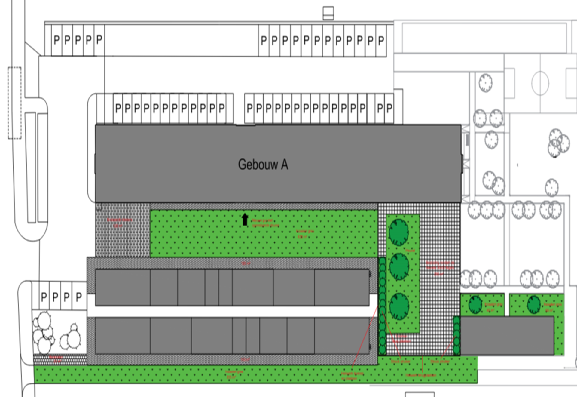
De werkzaamheden bestaan uit het bouwrijp maken van het terrein, inclusief grondwerk, egaliseren en het op hoogte brengen van het maaiveld. Daarnaast verzorgt K_Dekker de aanleg en aanpassing van nutsvoorzieningen zoals elektra, water, data en riolering voor zowel vuil‑ als hemelwater. Het project wordt gefaseerd uitgevoerd, waarbij in fase 1 woonblok B en in fase 2 woonblok C worden voorbereid.
De terreininrichting wordt uitgevoerd conform het schetsontwerp en bestaat onder meer uit herstraatwerk met hergebruikte betonklinkers, tegelwerk, gras en beplanting, hekwerken en een inrichting van de buitenruimte die aansluit bij het tijdelijke karakter van de woningen.
Duurzaam en zorgvuldig uitgevoerd
Binnen het project is aandacht voor duurzaamheid en circulariteit, onder andere door hergebruik van materialen en het toepassen van secundaire grondstoffen. Ook wordt rekening gehouden met ecologie, zoals het aanbrengen van vleermuisverblijfplaatsen en het verplanten van bestaande bomen. Door goede coördinatie met nevenaannemers en heldere werkafspraken verloopt de uitvoering veilig en efficiënt.